Вчера, 10 ноября, в администрации города прошёл очередной градсовет. Самой обсуждаемой архитектурной разработкой стал учебно-лабораторный корпус Алтайского государственного университета на площади Сахарова — 12-этажка и концертный зал с зелёным сквером на крыше.
Храм науки в центре города
Представлять проект, разработанный бюро «АрхИ Групп» Андрея Суртаева и мастерской «Классика», на градсовете прибыли создатель эскизного проекта архитектор Александр Деринг, президент АлтГУ Сергей Землюков и проректор вуза Олег Ильиных.
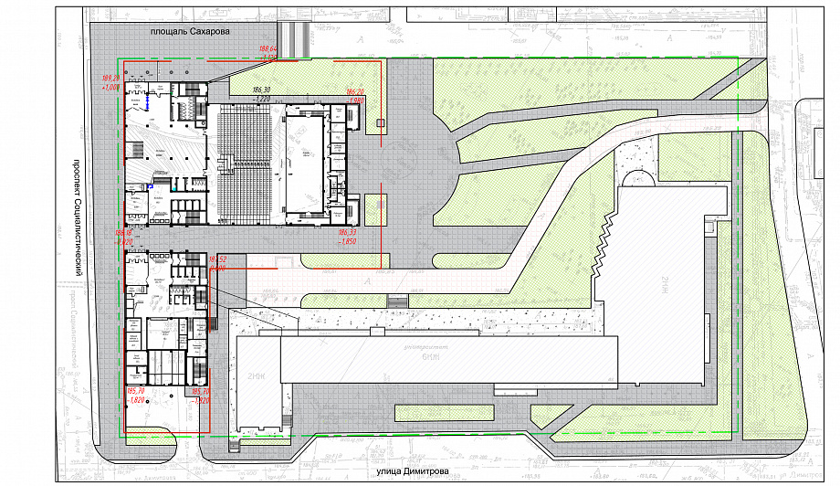
По словам архитектора Александра Деринга, перед разработчиками стояла непростая задача, ведь проект сложный по семантике и расположению в сложившемся градостроительном пространстве. В результате идеи, которые были заложены заказчиком — руководством вуза и Министерством образования, — вылились в следующее. По проекту здание будет состоять из двух 11- и 12-этажных корпусов (северного и южного), соединённых рекреацией. На втором этаже запланированы столовая, библиотека и другие общественные пространства. В северном корпусе разместят лекционные аудитории на 150–300 мест и большой актовый зал на 700 человек. Изюминкой корпуса станет заглублённый концертный зал с зелёной эксплуатируемой крышей, чтобы здание лучше вписалось в пространство существующего сквера. Летом её можно будет использовать для проведения концертов или других уличных мероприятий. В южном блоке запланированы современные лаборатории и кабинеты сотрудников университета. Со стороны улицы Димитрова по проекту должна разместиться подземная двухуровневая парковка на 136 машино-мест, что превышает требуемые нормативные показатели. Общая площадь объекта составит 36,7 тысячи квадратных метров. Новое здание планировалось соединить с существующим корпусом Д двухуровневым переходом.
Разработчики проекта предусмотрели компенсационное озеленение и благоустройство прилегающей территории. Застраиваемую территорию озеленят, высадив новые деревья, а пространство существующего сквера украсят малыми архитектурными формами и функциональными элементами декора садов и парков.
Одним из острых вопросов проекта было сохранение привычного для горожан прохода с улицы Мерзликина и проспекта Социалистического транзитом через сквер на проспект Ленина. Проход сохранён, его сделают по уровню первого этажа, сознательно идя на сокращение полезной площади здания. Ширина прохода — 12 метров. В целом новый комплекс станет частью мини-студенческого городка в центре Барнаула и, по мнению разработчиков и заказчиков, украсит собой Барнаул.
«Численность студентов в вузе — 14,5 тыс. человек. Этот корпус позволяет разместить почти три тысячи человек, но самое главное, что в нём будут современные лаборатории, которых сейчас нет в вузе. Это позволит студентам проводить качественные научные исследования. Сейчас мы арендуем около 5 тыс. квадратных метров, приходится даже покупать новые здания, чтобы размещать студентов. Новый корпус решит эту проблему», — обосновал необходимость строительства нового корпуса на заседании президент АлтГУ Сергей Землюков.
Зелёная крыша, парковка и градостроительные нормы
Из-за большого общественного резонанса, который вызывает предполагаемое строительство, вопросов к проекту было очень много.
Один из главных — высота и объёмы строения, которые нарушат существующий, привычный для горожан вид площади Сахарова. По мнению архитектора Владимира Золотова, в сравнении с существующими постройками, Дворцом спорта и зданием администрации края, новое будет спорить с ними по высоте. Но разработчики уверены, что если смотреть комплексно, то, так как здание администрации находится в глубине территории застройки, реальное восприятие нового корпуса будет иным, особенно если сравнивать его с существующими и планируемыми высотными объектами.
Также вопросы вызвала возросшая этажность здания. Несмотря на настоятельные рекомендации сделать его ниже, заказчики настаивают на своём решении, объясняя это тем, что добавленный верхний этаж — технический и выполнен с использованием светопрозрачных конструкций.
Другой важный вопрос — транспортно-пешеходные связи. По мнению главного архитектора Алтайского края Виктора Четошникова, организовать выезд с подземной парковки на ул. Димитрова с соблюдением технических норм нереально. Узкое горлышко улицы Димитрова, небольшой разворот перекрёстка на проспект Социалистический, по мнению членов градсовета, при увеличении автомобильного трафика замкнёт движение на этом участке.
По словам представителя заказчика Сергея Землюкова, озабоченность ухудшением ситуации с пешеходным и автомобильным движением у членов градсовета напрасная. Заказчики проекта намеренно пошли на уменьшение границ здания и увеличили подземную парковку. Ни у одного здания, по словам Землюкова, нет такой парковки в центре города.
Много вопросов вызвало и создание эксплуатируемой зелёной кровли над концертным залом, а в первую очередь — насколько применима такая технология в резко-континентальном климате региона. По словам Александра Деринга, такие технологии успешно используют в соседних сибирских городах — Иркутске, Тюмени — как при строительстве общественных, так и частных зданий. К тому же такой вид кровли с озеленением визуально ослабит давление на участок застройки.
Гибкая эксплуатируемая кровля также станет частью концепции озеленения этого участка. По словам президента АлтГУ, деревья планируют высаживать и вдоль строящегося здания во внутреннем дворе. Уже сегодня вуз высадил липовую аллею на Димитрова, с торца существующего корпуса посажены ели и деревья-крупномеры. Если по нормативам компенсационного озеленения этого будет недостаточно, в дальнейшем вуз готов рассмотреть увеличение зелёных насаждений.
«Если необходимо, я лично пересчитаю деревья, которые мы выкопаем, чтобы столько же высадить», — эмоционально высказался Землюков.
Главной причиной, почему проект отправили на доработку, стало его несоответствие градостроительным нормативам. Так, по словам Виктора Четошникова, участок, где планируется построить здание такой этажности и площади, должен быть около 12 га, а архитекторы почему-то решили всё уместить на 2 гектарах.
В итоге с рекомендацией и пожеланием всех членов градсовета уменьшить объём здания, «посадить» его с учётом существующей застройки и минимизировать разрушение исторически сложившегося облика площади проект был отправлен на доработку.
Напомним, разработанный проект был выбран из десяти конкурсных решений и создан с учётом пожеланий заказчика и владельца участка. Федеральные власти готовы выделить на строительство 1,5 млрд рублей. Возведение нового здания обсуждают с 2019 года, однако многие общественники и жители города выступают против застройки участка.
«Я предполагал, что с наскока никто такой значимый проект не одобрит. Однако мастерская «Классика» действовала в рамках техзадания заказчика, и пожелания членов жюри конкурса, на которые ссылаются участники совета, до нас не были доведены. Дальнейшая судьба проекта теперь в руках заказчика, вести переговоры, настаивать на необходимости сохранения заданных объёмов — их прерогатива», — сказал после обсуждения Александр Деринг.
В частной беседе с корреспондентом «Вечернего Барнаула» архитектор Пётр Анисифоров также отметил, что новое планируемое здание — это храм науки и он не должен вызывать отторжение и раздражение у жителей города.
«Задача членов градсовета — допускать к строительству объекты, которые буду радовать горожан, способствовать улучшению архитектурной составляющей Барнаула, а не вызывать желание идти другими путями, лишь бы не сталкиваться с неприятными глазу постройками. Да, мы многое отправляем на доработку, но с одной лишь целью — сделать город лучше», — отметил архитектор.
Здание розничной торговли
Объект розничной торговли по адресу ул. Аносова, 6а/1 разработала «Мастерская Золотова». Представлял эскизный проект архитектор Владимир Золотов.
Это двухэтажное здание с антресолевым третьим этажом, созданное в симбиозе с уже существующими и строящимися объектами на улице. Фасады нового здания выполнены в стиле, максимально приближающем его к рядом стоящим объектам. Стилистически они друг друга поддерживают и образуют единый комплекс, хотя владельцы зданий — разные люди. Объект намеренно заглублён к линии застройки. Подобное решение помогло создать необходимую парковку на десять автомобилей и благоустройство. У здания также предусмотрена вечерняя подсветка, подчеркивающая объёмно-планировочное решение.
По мнению членов градсовета, проект выполнен грамотно, архитектура не отторгает, а интересное решение элементов фасада и благоустройства формируют линию улицы и участок застройки. Единогласно проект был рекомендован к реализации.
Одноэтажный наземный гараж
Третий проект, который рассматривали на градостроительном совете, — гаражи-стоянки по адресу Павловский тракт, 211, — вызвал недоумение у его участников. С точки зрения архитектуры обсуждать там было абсолютно нечего. Гаражный комплекс разработан «Мастерской Золотова» ещё 15 лет назад, однако реализован не был. Новый собственник готов начать строительство, но у него заканчивается срок аренды участка, поэтому пока возвести можно лишь один из запланированных этажей. Это будет наземное одноэтажное строение, огороженное забором.
«Мы стараемся уходить от наземных одноэтажных гаражей, а вы предлагаете нам его построить, мотивируя обстоятельствами заказчика», — недоумевали участники обсуждения.
В итоге архитектору и заказчику было рекомендовано вернуться с реализации первоначального проекта.






















